新闻中心

融创杭曜之城杭州融创正荣杭曜之城怎么样(房价+摇号查询)-楼盘详情-首
发布时间: 2025-03-06 20:53:09

  您当前使用的浏览器版本过低,有几率存在安全风险,建议升级浏览器,或者用以下浏览器浏览

  如有问题欢迎来电咨询,来电就可以享受买房优惠!预约来电尊享购房优惠,可预约案场内部销售人员,专业一对一热情服务,让您用专业眼光去买房

  杭曜之城正如其名,从亮相之初辉耀至今,点亮业主对人居向往的同时,用一次又一次的热销佳绩,不断回馈着业主的期待与热爱。

  作为现象级热盘,杭曜之城此次三开火爆加推,不负全城热捧,以傲立园区C位的6#7#瞰景楼座,致敬全城舒居理想!

  下沙澎湃的城市活力,日以继夜地焕新这座年轻、丰茂、便捷的杭州主城。尤其是位于下沙的核芯区的杭曜之城,拥有完善醇熟的生活配套。

  实景双天街、下沙银泰、金沙印象城等多个商业综合体环绕,让金沙湖CBD成为下沙人气鼎盛的热门商圈;而即将建成问世的金沙湖大剧院,在金沙湖的映衬下,成功收获“杭州小悉尼”的美誉。

  与此同时,随着钱塘科学城(规划中)的澎湃发展,下沙在科创产业上更是独树一帜、成效卓著。

  2021年钱塘科学城新增师生创新创业企业168家,区内校友企业合计1000余家,涌现出沃镭科技(中国计量大学)、捷诺飞(杭州电子科技大学)等一批优秀企业。此外,浙江传媒学院、中国计量大学2个校友产业园,目前已累计引进优质项目120余个,总投资4.8亿元;浙江工业大学校友产业园、中国计量大学国家大学科技园扩园等一批项目也计划于年内落地投运。(数据来源:钱塘发布)

  日新月异的活力之城,也一定会在繁华精粹处,诞生出改善人居的代表作品——杭曜之城。金沙湖CBD、1号线、双天街……繁华缤纷的实景配套强势加成,都是亮相之初就叠加好的“热销buff”。

  近1号线,心动即行动的自由速度:项目直距地铁1号高沙路站线米(高沙路站),迅速接轨杭州东站、武林广场等地标区域;坐享德胜快速路、钱塘快速路(部分段建设中)双快速路,一脉畅联市心、城西。

  双天街+银泰+印象城,实景繁华的美好呈现:吾角天街、金沙天街、金沙印象城、下沙银泰形成4大超级商业引擎,以举步即达的熙攘繁华,实现未来生活的随心便捷。

  优教环绕,高知家庭的书香底蕴:项目临近12班幼儿园(规划中),比邻文海教育集团旗下文瀚学校(文海新校区)(规划中),荟聚杭州市文海实验学校、杭州市实验外国语学校等众多优质学府,文风浓郁、书香沉醉!(期房不承诺学区)

  双三甲医疗配套,健康生活的强力保障:临近邵逸夫医院下沙院区、浙江省中医院下沙院区,双三甲医院集聚,优质医疗资源相伴,护航家庭健康日常。

  人文配套林立,我曜慢享乐活:周边金沙湖公园、怡乐园、金沙湖大剧院(在建中)等资源荟萃,目前金沙湖大剧院即将蓄势开放,将来“你方唱罢我登场”各种好戏连台上映,让生活更加缤纷多彩!

  杭曜之城本次加推的C位双星6#7#楼幢,以阔绰的楼间距,实现更惬意的采光通风,一举拉满居住舒适感,打造“阳光满屋·清风满室”的理想起居氛围。

  阔绰的楼间距,不仅舒享风与光,还拥享更舒适的中央景观。儿童游戏场、室外潮流会客厅、林下花园、阳光草坪等主题景观映入眼帘,动人的四季园景就在眼前绚烂变幻。就这样在繁华静里,邂逅如诗如画的“风光人生”。

  本次加推6#7#楼幢,坐落园区的C位,舒享静谧起居氛围。如此宁静、雅致、私密的荣耀臻席,限量开抢。

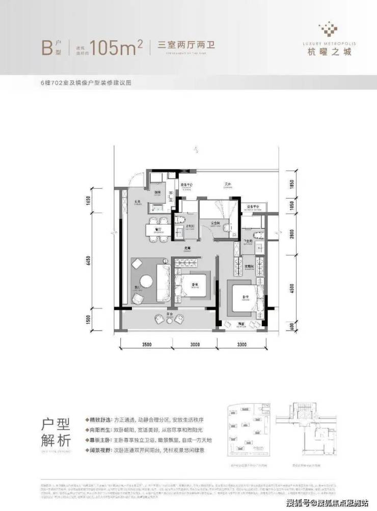
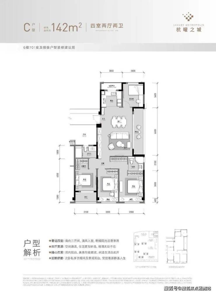
  在户型上,杭曜之城本次推出的是建面约105㎡、142㎡两种户型,从爆款三房到改善真四房,可满足多种购房者的需求。

  建面约105m²三房两厅两卫,依托方正通透、动静有致的空间规划,打造了爆款三居明星的格局。

  在采光通风方面,除了楼幢本身的楼间距优势,更锦上添花地做到了南向三面宽、约6.5米阔尺阳台。此外,主卧配置独立卫浴、阔尺飘窗,改善细节,匠心满满。

  约6.6米宽阔餐客厅,双向瞰景阳台+三卧室朝南的配置,可满足赏景、娱乐等多种生活需求。

  即便是北向卧室的开间,也达到了约3米;餐客厅约6.6米的阔绰面宽,给生活多加一点阳光。

  在精装方面,杭曜之城也是下足了心思。高配德系西门子三件套(洗碗机、燃气灶、油烟机),“龙头界劳斯莱斯”高仪花洒、水龙头,日立中央空调、双卫智能马桶、“奥运会指定供应商”德尔地板等等……如此的装修配置,不仅仅体现的是诚意,更能彰显其高性价比。

  唯有品质精选,才能在今后日复一日的居住中,更显生活的璀璨,让居家成为一场纯粹而温馨的享受。

  如有问题欢迎来电咨询,来电就可以享受买房优惠!预约来电尊享购房优惠,可预约案场内部销售人员,专业一对一热情服务,让您用专业眼光去买房

  本宣传资料所有文字、数据、图片及所标尺寸等仅为本项目建设区域设计效果的表达和示意,为要约邀请,不构成要约内容,相关联的内容不排除因政府相关规划、规定及其他原因而发生明显的变化,一切有关房屋的具体信息以书面合同及政府最终审批文件为准。本文中涉及景观的照片,系通过照相机镜头所呈现并经摄影家艺术加工,效果图系经电脑艺术加工形成,上述照片与效果图与人眼所见实景有几率存在差异,且后期可能因政府规划调整、城市建设而发生变更,仅做参考之用。开发商在法律规定的范围内保有最终解释权。部分图片素材来自互联网,如有侵权请联系删除,感谢支持。

  声明:本文由入驻焦点开放平台的作者撰写,除焦点官方账号外,观点仅代表作者本人,不代表焦点立场。

  荣安东湖留庄_嘉兴荣安东湖留庄价格_售楼处电话_房价-户型-容积率-售

  乌镇雅园售楼处电话地址-乌镇雅园售楼处-房价_房型图_户型图_交通地铁

  中建玖里书香(上海)首页网站/中建玖里书香欢迎您_中建玖里书香楼

  悠隐南山_湖州悠隐南山房价_楼盘怎么样-房价_房型图_户型图_交通地铁

  上海桃花源楼盘详情丨上海桃花源房价-户型-交通-面积 -楼盘百科详情

  蓝城桃李春风(2024年萧山蓝城桃李春风)楼盘详情-最新房价--楼盘详情

  利川御景天城-湖北恩施(利川御景天城)售楼处-楼盘详情--房价_房型图_

  纬至臻豪庭-经纬至臻豪庭-楼盘详情丨房价-户型图楼盘百科详情24小时热

  万达财富中心(上海嘉定)万达财富中心楼盘详情丨房价楼盘详情_容积率_电线

  湖山天境-湖山天境2024德圣湖山天境户型2024楼盘详情-房价-户

  青浦-虹桥灿耀星城售楼处电话售楼中心网站= 楼盘详情_价格趋势_最

  观宸润府-上海浦东(观宸润府)售楼处- -2024楼盘详情-房价-户型